SOBRE

N12

PANORAMA

Catalogación de la biblioteca de Enric Miralles y Benedetta Tagliabue

2026

CATALOGACIÓN DE LA BIBLIOTECA
DE ENRIC MIRALLES Y
BENEDETTA TAGLIABUE

Bernardo García Morales

Bernardo García Morales

Universidad Politécnica de Cataluña / Escuela Técnica Superior de Arquitectura de Barcelona
bernardo.garcia.morales@upc.edu

 

Recibido/Submitted: 26/06/2025 | Aceptado/Accepted: 12/01/2026
DOI: 10.30827/sobre.v12i.34886

Citar como: García Morales, Bernardo. 2026. “Catalogación de la Biblioteca de Enric Miralles y Benedetta Tagliabue”. SOBRE 12. https://doi.org/10.30827/sobre.v12i.34886

Cite as: García Morales, Bernardo. 2026. “Cataloguing the library of Enric Miralles and Benedetta Tagliabue”. SOBRE 12. https://doi.org/10.30827/sobre.v12i.34886

CATALOGUING THE LIBRARY OF ENRIC MIRALLES AND BENEDETTA TAGLIABUE

ABSTRACT:

Private libraries embody the intellectual interests of their owners. Such is the case with the private library of Enric Miralles and Benedetta Tagliabue. Built up during the architects’ academic training and throughout the professional trajectory of the EMBT office, this library transcends bibliographic accumulation to become an intellectual device. The working method of EMBT flourishes in close collaboration between architecture and other arts, with literature always playing a significant role. This article forms part of an ongoing research project focused on the EMBT library, within the broader process of archival cataloguing currently underway. The aim of this work is to reconstruct the history of the library’s formation, to examine the relationship between literature and architecture, and to develop a digital cataloguing system that will facilitate access for researchers through the Enric Miralles Foundation.

KEY WORDS: Private libraries, EMBT, Bibliographic cataloguing, Intellectual biography, Architectural archive

RESUMEN: Las bibliotecas privadas condensan los intereses intelectuales de sus propietarios. Así lo es, al menos en el caso de la biblioteca privada de Enric Miralles y Benedetta Tagliabue. Constituida a lo largo de la etapa de formación académica de los arquitectos y la trayectoria profesional del despacho EMBT, esta biblioteca trasciende la acumulación bibliográfica para configurarse como dispositivo intelectual. La manera de trabajar de EMBT florece en estrecha colaboración de la arquitectura con otras artes, donde la literatura ha tenido siempre un papel protagonista. Este artículo es parte de una investigación centrada en la biblioteca EMBT, dentro del proceso de catalogación archivística que se está llevando a cabo. El objetivo de este trabajo es reconstruir la historia de su constitución, adentrarse en la relación entre literatura y arquitectura como origen creativo, y desarrollar un sistema de catalogación digital para facilitar el acceso a investigadores a través de la Fundación Enric Miralles.

PALABRAS CLAVE: Bibliotecas privadas, EMBT, catalogación bibliográfica, biografía intelectual, archivo arquitectónico

SECCIÓN PANORAMA
SOBRE N12 01/2026

 1. Introducción. Una biografía intelectual.

Desde que Aristóteles acumulara en su Liceo una de las colecciones privadas más antiguas de las que tenemos constancia (Blum, 1991, pp. 53-64), las colecciones privadas han tenido una presencia importante en la historia de las bibliotecas (Pettegree & der Weduwen, 2024, p. 166)1 que constituyen una vía para reconstruir las redes intelectuales de cada época. En el caso de las bibliotecas de arquitectos, estas funcionan como laboratorios conceptuales: cartografían afinidades, obsesiones y desplazamientos que no afloran normalmente en la documentación profesional. Existen casos paradigmáticos, como la biblioteca de más de 7000 volúmenes de John Soane, que forma parte intrínseca de su casa museo (Watkin, 1996, pp. 45–53) y otras más cercanas, como son los casos de las valiosas bibliotecas cedidas a la universidad pública. Ejemplos de ello son la biblioteca de Manuel Ribas i Pera, formada por más de 750 títulos publicados entre el siglo XVI y el siglo XX, la de Manuel de Solá Morales, Josep María Sostres o más recientemente la de Antonio Castro Villalba.

Este artículo expone el caso de un proyecto vivo: el proceso de indexación y catalogación que se está llevando a cabo en la biblioteca personal de Enric Miralles y Benedetta Tagliabue (a partir de ahora EMBT). Estimada en unos 3000 volúmenes adquiridos a lo largo de su trayectoria académica y profesional, la biblioteca es mucho más que un dispositivo de acumulación: expresa la inmensa voluntad de conocimiento de sus autores. Un recorrido por la obra de EMBT muestra como la literatura, y por ende la biblioteca, forma parte integral de su imaginario arquitectónico. Los libros no son solo una fuente de consulta, sino que el trasvase del proceso creativo literario a la arquitectura constituye una fuente de inspiración constante. Este artículo, además de ahondar en el proceso de catalogación, indaga en esta relación entre disciplinas, y muestra cómo una biblioteca transforma la evolución intelectual gracias a la hibridación de procesos y transferencias creativas.

La estructura del artículo se divide en tres partes. Una primera parte, titulada ¿Qué es una biblioteca?, introduce las características esenciales de la biblioteca EMBT. La segunda parte, Construcción de una biblioteca, analiza la constitución de la colección desde la óptica EMBT. La tercera parte, Metodología y proceso de catalogación, responde a la explicación técnica de cómo se está llevando a cabo el proceso de catalogación, que responde a un enfoque cualitativo-descriptivo, en la medida en que busca registrar y sistematizar no solo la información contenida en los volúmenes, sino la organización física de la biblioteca, sus temáticas y su historia. Este artículo evita hacer un recorrido biográfico de los arquitectos y la relación de EMBT con la literatura en general, ya que estas cuestiones se encuentran profusamente documentadas en textos como Del texto a la arquitectura (García-Estévez & Rovira, 2020), Una maleta llena de Arquitectura de Enric Granell (2011) o Poesía oblicua y otras recetas (Gilabert Sanz, 2015). La tesis doctoral de Isabel Zaragoza (2015), que inicia un tesauro del universo EMBT o la web Homenaje a Enric Miralles (Almalé Artal & Puchalt Lacal, s. f.)2 comienzan sendos trabajos de catalogación del pensamiento EMBT, pero ninguno se centra exclusivamente en la biblioteca.

Catalogar una biblioteca es articular una suerte de biografía intelectual de su propietario, un mapa de las influencias que nutren su práctica profesional. An intellectual biography es el título que escoge Ernst Gombrich para el título de su obra sobre Aby Warburg, que describe de la siguiente manera:

For him the library he collected and wanted to hand on to his successors was to be an instrument of enlightenment, a weapon in the struggle against the powers of darkness which could so easily overwhelm the precarious achievement of rationality. (Gombrich, 1970, p. 13)

En nuestro caso, adentrarse en esta biblioteca equivale a iluminar el origen del pensamiento de EMBT. Este artículo propone que la biblioteca EMBT funciona como un dispositivo intelectual cuya organización espacial y temática constituye una cartografía del pensamiento proyectual de Miralles y Tagliabue. Catalogarla no consiste solo en inventariar libros, sino en reconstruir la estructura relacional de un imaginario arquitectónico. Finalmente, el resultado de este trabajo es elaborar un inventario exhaustivo que registre cada ejemplar con sus metadatos y crear, así, un archivo documental capaz de conservar tanto la configuración espacial como la dimensión simbólica de la biblioteca.

 

 2. ¿Qué es una biblioteca?

Para abordar esta pregunta inabarcable, podríamos intentar acortarla al objeto de esta investigación: ¿Qué es una biblioteca privada? ¿Qué es una biblioteca privada para un arquitecto? Tal como describe Gaston Bachelard en La poética del espacio (1957/1994), la biblioteca es un espacio de afinidades subjetivas, un espacio de correspondencias, una construcción física de la memoria que interactúa con cada usuario de manera única desplegando los artefactos que apelan a la estructura laberíntica de significados personales: un lugar de resonancias simbólicas. Según Walter Benjamin, el acto de poseer y ordenar libros no es un acto racional, sino una experiencia personal cargada de asociaciones emocionales y biográficas (Benjamin, 1931). Para adentrarnos en la relación entre propietario y biblioteca, podemos analizar el caso extremo del historiador alemán Aby Warburg quien, con trece años, cambió el derecho de primogenitura a su hermano menor bajo la promesa de un perpetuo abastecimiento de libros (Gombrich, 1970, p.22). Fue precisamente Warburg quien puso nombre al sistema de clasificación que también inspira la biblioteca de EMBT.

Según Saxl, citado por Gombrich y reproducido en Centanni (2023, p. 176), en la biblioteca de la Heilwigstraße era «igualmente sorprendente […] la disposición de los libros, y resultaba particularmente extraño que Warburg nunca se cansara de cambiarlos una y otra vez», siguiendo la llamada Gesetz der guten Nachbarschaft. Esta ley de la buena vecindad ejemplifica que el conocimiento surge de la vecindad productiva entre ideas, imágenes y textos. Saxl sigue: «El vecino de la estantería podía contener información vital para la investigación, aunque solo por su título no se hubiese sospechado» (ibid). Este tipo de organización, aun con precedentes históricos y adoptada por muchos otros autores que comparte esta aproximación al conocimiento fue nominada en primera instancia por Warburg. La biblioteca de Julio Cortázar, donada en 1993 bajo el estricto orden de sus preferencias a la sede de la fundación Juan March de Madrid, refleja este mismo sentimiento de organismo vital. Al igual que en la biblioteca Warburg, «Los libros eran […] algo más que instrumentos de investigación. Reunidos y agrupados, expresaban el pensamiento de la humanidad en sus aspectos constantes y en los cambiantes» (ibid). La biblioteca de EMBT adopta un mismo esquema organizativo, creando así un paisaje intelectual modelado como una cartografía de pensamiento, alejado de la organización usual alfabética o temática. De esta manera, el conocimiento se despliega a través de un diálogo directo y siempre inconcluso entre los autores y el lector, que se produce al experimentar y recorrer el espacio de la biblioteca. Bajo esta perspectiva, la organización mental y física de una biblioteca se corresponden y confluyen en simbiosis. Preservar la biblioteca EMBT se convierte, por tanto, en un acto de reconocimiento hacia esta forma específica de acercarse a la cultura, eminentemente observacional: Para EMBT, «el viaje, la construcción y Ia información es algo consustancial a la arquitectura» (Zabalbeascoa & Rodríguez Marcos, 1999). La experiencia vital de viajes y proyectos guían el aprendizaje a través con un profundo respeto por la memoria (figura 1).

Figura 1: Acceso principal de la Biblioteca Warburg en Hamburgo, con la inscripción «ΜΝΗΜΟΣΥΝΗ» (Mnemosyne, memoria) sobre el dintel, diseñada por Fritz Schumacher a petición de Aby Warburg, ca. 1926. The Warburg Institute Archive, London.

La memoria es también un lugar fundamental enraizado en los orígenes de los proyectos de EMBT. Así lo explicitó Enric Miralles en el primer volumen de la tesis doctoral de Enric Miralles a través de un dibujo extraído del Congestorium Artificiose Memoriae de Johannes Romberch. (figura 2) Este grabado alegórico representa una biblioteca como sistema de saber organizado simbólicamente, donde cada compartimento funciona como un locus de memoria: objetos, instrumentos, libros, gestos, símbolos religiosos y científicos actúan como condensadores visuales de disciplinas, prácticas o campos del saber. Recuperar, organizar y promover la memoria será una constante en cada proyecto de EMBT.

Figura 2: Xilografía que ilustra un método de entrenamiento de la memoria mediante imágenes basadas en lugares, procedente del Congestorium Artifiose Memoriae de Johannes Romberch, impreso en Venecia en 1553.

3. Cartografía de una biblioteca

Así como dibujo y escritura se complementan y contaminan en la obra de EMBT, la construcción física de una biblioteca alude también a su carácter simbólico. Cuando Aby Warburg saturó su vivienda de libros, convenció a sus hermanos para comprar la parcela anexa, que dedicó enteramente a la biblioteca. Este proyecto ocupó intensamente a Warburg, que entendía la construcción del nuevo edificio como una oportunidad. Así, la arquitectura reproducía la estructura interna del archivo: cuatro plantas que reflejaban las secciones principales de su colección. La casa incluía tecnología muy avanzada para el movimiento interno de los libros, inspirado en el sistema interno de los bancos de la época. (Calandra di Roccolino, 2014). El centro de la casa, una sala oval independiente hacia el jardín hace las veces de sala de consulta y conferencia (figura 3). Fue diseñada siguiendo una tipología habitual inspiradas por Leibniz en motivos cosmológicos, como la Bibliotheca Augusta en Wolfenbüttel o la Hofbibliothek de Viena, en un momento en que Ernst Cassirer y Warburg discutían sobre los movimientos elípticos planetarios propuesto por Johannes Kepler. (Centanni, 2023, p. 189). La biblioteca Aby Warburg sirve como ejemplo para demostrar cómo la construcción física de una biblioteca se relaciona íntimamente con la organización mental de la misma: en su exploración podemos encontrar pistas de lo que se encuentra más allá de una simple colección de libros. 

Figura 3: La sala oval de la Biblioteca Warburg en Hamburgo, ca. 1926–1927. The Warburg Institute Archive, London

A lo largo de su trayectoria profesional, EMBT se enfrenta a algunos proyectos de bibliotecas. De las tipologías dedicadas exclusivamente a ello, encontramos el concurso para la Biblioteca Nacional de Japón en 1996 (figura 4). La memoria de concurso lee: «Los libros deberían de estar ocultos… el conocimiento no está en los libros. Está en el acto de leer, leemos en la cima del paisaje construido con libros, bajo los árboles, cerca de un pueblo… la biblioteca-pueblo […]» (Miralles & Tagliabue, 1996).

Figura 4: Collages de concurso para la Biblioteca Nacional de Japón, EMBT (Miralles & Tagliabue), 1996. Fundación Enric Miralles.

Esta memoria está en sintonía con el texto de Louis Khan «schools began with a man under a tree»3, que construiría una biblioteca en Exeter y que los arquitectos conocían. No obstante, su acercamiento reelabora estos modelos hacia una domesticación del carácter institucional de una biblioteca -Warburg- y un despojamiento de su carácter monumental -Khan-. Un año más adelante, en la memoria del proyecto para la Biblioteca de Palafolls (figura 5), hoy rebautizada Biblioteca Enric Miralles, encontramos explícitamente esta renuncia:

« Uns llibres i un somni…

L’edifici és una construcció
                    qualsevol en un jardí….
No guarda cap record del caràcter institucional de les biblioteques.
       …Són uns murs que potser estaven en aquest lloc.

Nosaltres hem estat intentant a través de diferents camins
donar a la biblioteca un tipus de gravetat de laberint.
Una sèrie d’habitacions i jardins assemblats de manera no lineal.

L’edifici és un experiment que utilitza cada desenvolupament del projecte…
Els seus continus canvis i variacions,
així com l’autoritat d’acceptar el resultat final… »

Figura 5: Dibujo de la primera versión del concurso para la Biblioteca de Palafolls, EMBT (Miralles & Tagliabue), 1988. Fundación Enric Miralles.

Para los arquitectos, una biblioteca debe suprimir la distancia entre la literatura y lector. El libro se convierte en un elemento doméstico y accesible, que permite que el conocimiento se produzca de manera espontánea. Es en los proyectos de vivienda donde se manifiesta con mayor claridad este carácter. Tanto en la casa de Mercaders, el despacho del Pasaje de la Paz, como en la Clota (figura 6), los libros se despliegan con total comodidad por las estancias de la casa, habitantes por derecho propio que se mueven junto a mesas, sillas y objetos, por «esta casa [que] funciona como un tablero de ajedrez». (El Croquis, 2009), conquistando las superficies de los muros con ramas llenas de hojas impresas con tinta en diminutos caracteres4.

Figura 6: [izda.]  Interior vivienda Mercaders, 1995,Fotografía de EMBT. Fundación Enric Miralles; [centro] Interior vivienda La Clota, 1998, Fotografía de EMBT. Fundación Enric Miralles; [dcha.] Interior despacho Pasaje de la Paz, 1996,Fotografía de EMBT. Fundación Enric Miralles.

Figura 7: [izda.] Primeros bocetos para el despacho EMBT, 1996. (Miralles & Tagliabue) Fundación Enric Miralles; [dcha.] Boceto de la estructura de la librería, 1996. (Miralles & Tagliabue) Fundación Enric Miralles.

En esta casa, las estanterías fragmentadas se despliegan en varias estancias como parte del diseño original de los espacios (figura 7). El diseño de la estantería es simple. Unos perfiles redondos de hierro macizo soldados pintados de blanco son soportados sobre pies derechos de perfil tubular. Las estanterías exentas presentan estantería por ambos lados, las adosadas se empotran a la pared cuando es posible. Cada estante es configurado por dos redondos metálicos, creando los apoyos mínimos necesarios para libros y otros objetos. Soportes de libros con chapa doblada permiten crear grupos y soportar objetos pequeños. Como se aprecia en las fotografías, cuando la librería está llena, la estructura mínima que los soporta pasa totalmente desapercibida, dejando una línea de libros que parecen flotar. Este diseño de librería se acompaña de mobiliario específicos de madera en las distintas estancias formando baldas y cajas donde también se apoyan los libros y otra documentación.

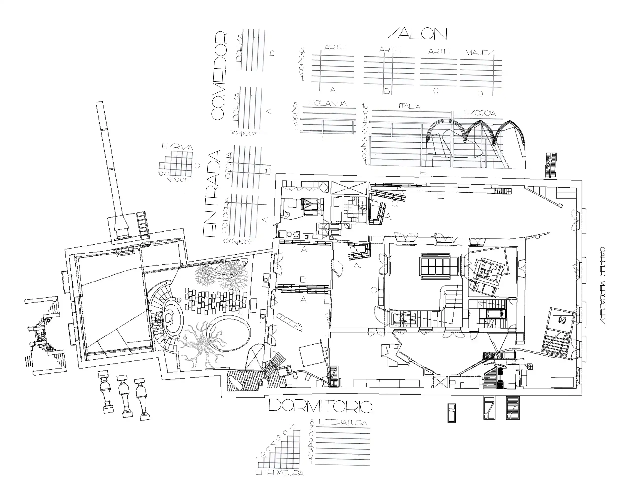
La biblioteca EMBT objeto de la catalogación se encuentra repartida entre la vivienda en la Calle Mercader 24 y el despacho en el Pasaje de la Paz 1. La biblioteca está dividida en secciones generales que siguen luego el método nominado por Warburg. El Pasaje de la Paz (figura 12) contiene la mayoría de los libros de arquitectura. Sirve de referencias en el uso diario del trabajo de la oficina y continúa creciendo con publicaciones contemporáneas y ediciones orientadas a los distintos proyectos en curso. La parte principal, en dos niveles, se encuentra en la sala de trabajo y en la sala Enric. Aquí encontramos algunas colecciones de gran valor actualmente descatalogadas, como las series de Garland Publishing publicadas entre 1977 y 1982 de Louis I. Kahn: Drawings, Drawings from the Le Corbusier Archive en 32 volúmenes y Drawings from the Frank Lloyd Wright Archives, además de otras monografías de Michelangelo, McKim, Mead & White (1977) (figura 8) y las múltiples de Alvar Aalto. Estas ediciones, profusamente marcadas con anotaciones y hojas sueltas, forman el grupo original de referencias arquitectónicas y resultan imprescindibles para entender la evolución de EMBT. Como Benedetta Tagliabue recuerda en conversaciones durante el proceso de catalogación, estos libros servían de consulta constante durante los proyectos y permanecían abiertos sobre la mesa de dibujo, una costumbre que aún se conserva en el despacho. El espacio de administración contiene archivos y documentación del despacho, además de la colección de revistas contemporáneas. En el despacho de Benedetta, se guardan libros de recientes adquisición, además de donaciones, obsequios de colaboraciones al despacho y otros documentos de trabajo. La Fundación Enric Miralles (FEM) alberga exclusivamente publicaciones relacionadas con el despacho EMBT.

Figura 8: La monografía deMcKim, Mead & White contiene muchos marcadores y traspapeles. En las páginas del Boston Symphony Hall se encuentra una hoja suelta de imagen en perspectiva del concurso para la transformación del Palau Finestres, realizado en 1987. Fotografía del autor, 2025.

En la casa de la calle Mercaders, las estanterías articulan la transición entre los espacios de entrada, cocina y salón (figura 11). A continuación, se reproduce un fragmento de la experiencia que se produce al visitar la biblioteca, registrado en el diario de investigación del proceso de catalogación:

Lo primero que se te aparece es un cefalópodo gigante (figura 9), arremolinado en una esquina de la casa, extendiendo sus tentáculos de hierro blanco como enredaderas por los huecos de las paredes.

Con su presencia de animal marino, las estanterías de la biblioteca EMBT custodian el hogar como una esfinge protege su tesoro: los libros son entonces vigilantes escuálidos, cantos de sirena, que divierten y te atrapan en el remolino de sus páginas.

Caer en las redes de su abrazo líquido es comenzar un periplo espontáneo y acróbata, con una cadencia que resuena en la afinidad de autores, conceptos e inquietudes…

Su capacitación laberíntica despierta la curiosidad de los aventureros, desenredando ideas que se entrelazan y referencias que responden unas a otras como fragmentos de un diálogo en vibración continua.

Una biblioteca como espacio físico que no guarda cap record, alude también a la memoria efímera de los peces, en contraposición al castillo de la memoria que son las bibliotecas…

…la memoria como rozamiento profundo que impregna lento e implacable el fondo del acuario, una experiencia física del cerebro, una veladura inasible que guía el acomodamiento de las cosas5

Figura 9: Collage de la librería en la casa de Calle Mercaders, 2025. Sobre la planta original de la biblioteca se dibuja la silueta de un cefalópodo cuyos tentáculos figuran las estanterías desplegadas en las distintas estancias de la casa. Elaboración del autor sobre plano original de Miralles & Tagliabue cedido por la Fundación Enric Miralles.

Los libros de la casa Mercaders se agrupan generalmente por temáticas donde se combinan libros clásicos con ediciones contemporáneas y algunas ediciones antiguas remarcables. En la entrada encontramos una colección de Espasa, Enciclopedia universal ilustrada europeo-americana de 115 volúmenes, con mobiliario hecho a medida. El comedor contiene, sobre todo, libros de bolsillo dedicados a poesía, con una gran parte dedicada a literatura iberoamericana. El dormitorio encontramos algunas de las ediciones clave en la formación intelectual primigenia de EMBT, como Bartleby el escribiente, Doctor Jekyll y Mr. Hyde, Los objetos fractales de Benoît Mandelbrot, así como muchas obras del Ouvroir de littérature potentielle (Oulipo), cuyas figuras Raymond Queneau y Georges Perec son centrales como inspiración y también en la enseñanza académica6. Otras ontologías de Thomas Mann, Octavio Paz también destacan en este espacio. En el salón se encuentra el grueso de la biblioteca. Las temáticas dejan entrever no solo las afinidades de los arquitectos, sino revelan también la trayectoria profesional. La sección escocesa, vinculada al proyecto de Parlamento de Escocia, ocupa gran parte, con una profusa dedicación a algunos autores de referencias, como Robert Louis Stevenson, Thomas Carlyle o Hugh MacDiarmid y, por supuesto, Charles Mackintosh. La sección italiana también tiene mucha presencia, con muchos de los clásicos y organizados aproximadamente por regiones geográficas, lugares de viajes y proyectos de EMBT (Venecia, Florencia, Nápoles). Aunque con menos presencia, ocupan un lugar también, Holanda, Alemania y Gran Bretaña. Destacan algunas colecciones importantes, como The Letters of Robert Louis Stevenson en una edición en ocho volúmenes publicada entre 1994 y 1995 por Yale University Press. Además de los libros expuestos en las estanterías, otros espacios de la casa almacenan colecciones parciales de revistas como AV, Área o GA, junto a otros libros sin organización particular (figura 10).

Figura 10: [izda. arriba] Detalle librería Salón Casa Mercaders, 2025. Fotografía del autor; [izda. abajo] Comedor Casa Mercaders, 2025. Fotografía del autor; [derecha. arriba] Dormitorio Casa Mercaders, 2025. Fotografía del autor; [dcha. abajo] Salón Casa Mercaders, 2025 Fotografía del autor.

Figura 11: Plano de las estanterías desplegadas en la Biblioteca de la Calle Mercaders, 2025. Elaboración del autor. sobre plano original de Miralles & Tagliabue cedido por la Fundación Enric Miralles.

Figura 12: Plano de las estanterías desplegadas en la Biblioteca de Pasaje de la Paz, 2025. Elaboración del autor sobre plano original de Miralles & Tagliabue cedido por la Fundación Enric Miralles.

4. Metodología y proceso de catalogación

Esta investigación se inscribe en una metodología específica de archivo que se alinea con la expuesta recientemente como Crafting history (Yaneva, 2020), donde la historia se construye a partir del análisis de los rastros materiales y relacionales que configuran el proceso creativo. La biblioteca EMBT es un catálogo vivo en continuo crecimiento, que se estima por encima de los 3000 volúmenes. Durante la redacción de este artículo, el proceso de catalogación se encuentra en fases iniciales, y se realiza bajo una consistente supervisión de Benedetta Tagliabue, quién ha mantenido fielmente la organización de la biblioteca en el momento de la muerte de Enric Miralles en el año 2000. La catalogación reproduce esa organización, de manera que la biblioteca conserva la esencia de su estructura de pensamiento. El objetivo final es indexar exhaustivamente libros, revistas y otros documentos pertenecientes a la biblioteca, para ofrecer un acceso digital que facilite la búsqueda y la abra al público en general. 

En primer lugar, se toman fotografías de todas las estanterías con el objetivo de respetar la ubicación y disposición en su ubicación original en las estanterías. Se establecen los criterios de organización para identificar cada sector de la biblioteca, designado por el nombre de la sala, un código alfabético para identificar cada estantería y un código numérico para cada altura. El proceso de catalogación se realizará por tramos de estantería, de manera que los libros no se mezclen entre ellos. Durante este proceso se fotografían portadas y anotaciones manuscritas, y se reacondicionan los ejemplares en mal estado. Los muy abundantes marcadores, hojas sueltas, traspapeles y las no tan abundantes anotaciones manuscritas son especialmente atractivos desde el punto de vista archivístico, pues ofrecen descubrimientos y conexiones insospechadas. Con la ayuda de una herramienta de catalogación digital, se escanean los códigos de barras de los volúmenes, creando una lista completa de sus características. En aquellas ediciones que no dispongan de registro se añade la información de manera manual. Cada volumen registra sus metadatos para facilitar su consulta y organización, recogidos en fichas con la siguiente información (figura 13):

  • Título y subtítulo
  • Autor o autores
  • Prologuista
  • Traductor
  • Ilustrador
  • Editorial 
  • Lugar de publicación
  • Año de publicación
  • Descripción física
    • Descripción de dimensiones en centímetros
  • Estado de conservación
    • Bueno / Frágil
  • Tipo de documento
    • Libro impreso / Trabajo académico / Revista / Periódico / Hojas sueltas/ Fotografías / Láminas / Cómics / CD / DVD / Otros
  • Identificación (ISBN/ISSN u otros, si aplica)
  • Fotografías de portada 
  • Fotografías de las anotaciones
  • Notas adicionales 
    • Marcadores / Anotaciones / Rarezas/ Dedicatorias / Ex libris / Inserciones
  • Palabras clave asociadas
    • Geográfica / temporal / materia / estilo)
  • Etiqueta de ubicación física
    • Localización: Calle Mercaders (MER) o Pasaje de la Paz (PAU)
    • Espacio: Mercaders (Entrada/Dormitorio/Comedor Salón), Pau (Trabajo/Enric/Administración/Bene)
  • Nombre de estantería: A/B/C, etc.
  • Número de estante por altura: 1/2/3, etc.
  • Etiqueta de registro
    •  Registro numérico de cada ejemplar en el sistema: BEMBT 1 

Figura 13: Ficha de catálogo propuesta, 2025. Elaboración del autor

Dado que la biblioteca está organizada por afinidad, este sistema de identificación por etiqueta respeta esa lógica flexible y única. Es por ello por lo que los metadatos se amplían con respecto a los estándares internacionales. Las etiquetas se colocan en el lomo de los libros, utilizando una funda plástica cuando se estime necesario. Una vez completada, la catalogación física de todos los volúmenes y su indexación digital se traslada a una base de datos. Esta base de datos alimenta un buscador web asociado a la página de la FEM, que permitirá abrir el acceso público para la difusión del legado arquitectónico de Enric Miralles. El catálogo resultante será accesible a través de una plataforma digital que permitirá realizar búsquedas avanzadas por título, autor, palabras clave y temática. Los usuarios podrán ponerse en contacto con la Fundació Enric Miralles (FEM), quién dispondrá los libros para su consulta en el espacio de la fundación. La plantilla web será de fácil uso y mantenimiento, lo que garantiza que el sistema sea sostenible a largo plazo y pueda ser actualizado conforme se añadan nuevos volúmenes a la colección.

Como referencia para la creación de esta propuesta, se ha contactado y estudiado la biblioteca Julio Cortázar en la sede central de la fundación Juan March en Madrid. De unos 4000 volúmenes, la biblioteca es accesible para investigadores y se encuentra indexada digitalmente de manera similar a la descrita anteriormente7. Esta biblioteca es una inspiración porque recoge fielmente las notas manuscritas, dibujos y firmas de cada volumen, identificando los originales de Julio Cortázar. La biblioteca se ha convertido en una fuente imprescindible para el conocimiento del universo Cortázar, y además ha contribuido a la difusión de la obra a través de ciclos documentales, conferencias y podcast semanales que, a fecha de este escrito, se mantiene en activo. Por otra parte, la catalogación propuesta se fundamenta en los estándares internacionales de descripción bibliográfica, siguiendo los principios del International Standard Bibliographic Description (ISBD) y de la Resource Description and Access (RDA), lo que garantiza la interoperabilidad con sistemas de referencia globales como WorldCat o Europeana. Asimismo, se procura que la estructura de metadatos propuesta tenga transcripción compatible con el formato MARC21, ampliamente utilizado en bibliotecas y archivos digitales, lo que permitirá integrar la Biblioteca EMBT en redes de catalogación internacional y asegurar su sostenibilidad a largo plazo. Gracias a su integración en la FEM, la Biblioteca Enric Miralles Benedetta Tagliabue se proyecta como un referente que ayuda a inmortalizar la obra de estos arquitectos.

 

5. Conclusión: la biblioteca como memoria arquitectónica

En definitiva, la biblioteca EMBT se convierte en una biografía inseparable de la vida intelectual de sus propietarios8. Como en los casos de Julio Cortázar o del Instituto Warburg, se trata de un organismo vivo que continúa estableciendo resonancias en la memoria de sus lectores gracias al despliegue de una constelación de referencias recíprocas: un espacio donde libros, dibujos y objetos conviven en el ámbito doméstico, tensionando las reglas tradicionales de la biblioteca institucional y mezclándolas con la experiencia vital. La literatura ha retratado con frecuencia las bibliotecas como territorios de memoria e imaginación; en esta colección esas imágenes se hacen tangibles en el marco de una práctica arquitectónica que integra la literatura como parte de su imaginario creativo.

Indexar y abrir la biblioteca al público significa ofrecer a los investigadores no solo un archivo de referencias, sino una red de relaciones en transformación continua. Catalogar supone visibilizar el mapa de influencias que configura el pensamiento arquitectónico de EMBT y, al mismo tiempo, prolongar la vigencia de los autores que habitan sus estanterías. Ofrecer el contenido de la biblioteca a un público más amplio significa ser fiel al espíritu generoso de este mecanismo de correspondencias. La multiplicidad de caminos en que se desarrolla la cultura puede disponer en la biblioteca EMBT de un nuevo lugar de encuentro. Con ello, esta catalogación no es tan solo una tarea archivística, sino un método para la exploración vital hacia el espíritu de la creación, que ahonda en el pensamiento arquitectónico de EMBT y nos invita a participar en una conversación inagotable entre lenguajes diversos y pensamientos afines.

El espíritu relacional de esta investigación queda expuesto en la definición que André Gide hace de su trabajo sobre Dostoievski «De ningún modo se trataría de un trabajo histórico, sino de una exploración de ciertas regiones oscuras de la vida espiritual» (Gide, 1999, p. 17). Julio Cortázar lo reformula para su elegía a John Keats:

[…] lo que más gustaría explorar […] es la situación y el decurso del espíritu en la vida, del hombre dotado de espíritu inmerso en su circunstancia. Una poesía haciéndose, su respiración, su pulso, ese alentar que separa las aguas y entra en el alegre caos del día como la proa o el pájaro. (Cortázar, 1996, p. 21)

Y nosotros lo adoptamos para definir esta biblioteca como espíritu, «que nos observa pulular por los pasillos desde el lomo de los libros, sumergidos este mundo subacuático mientras el sol ondula su reflejo en las superficies hidráulicas y el alma cierra círculos en las palabras»9.

Referencias

Almalé Artal, A., y Puchalt Lacal, M. (s. f.). Homenaje a Enric Miralles. Recuperado de https://homenajeaenricmiralles.wordpress.com/.

Bachelard, G. (1994). La poética del espacio (E. de Champourcin, Trad.). Fondo de Cultura Económica. (Obra original publicada en 1957).

Benjamin, W. (1972). Desembalo mi biblioteca: Un discurso sobre el arte de coleccionar. En Iluminaciones II (J. Aguirre, Trad., pp. 267-278). Taurus. (Obra original publicada en 1931). 

Blum, R. (1991). Kallimachos: The Alexandrian Library and the origins of bibliography (H. Wellisch, Trad.). University of Wisconsin Press.

Calandra di Roccolino, G. (2014). Aby Warburg architetto. Nota sui progetti per la Kulturwissenschaftliche Bibliothek Warburg ad Amburgo. La Rivista di Engramma, 116, 54-65. https://doi.org/10.25432/1826-901X/2014.116.0005.

Centanni, M. (Ed.). (2023). Aby Warburg y el pensamiento vivo (Ada Naval, Trad.). Siruela.

Cortázar, J. (1996). Imagen de John Keats. Alfaguara.

Díaz-García, A. (2018). Georges Perec instrucciones de uso: Lecturas perecquianas en la docencia de arquitectura. I2 Innovación e Investigación en Arquitectura y Territorio, 6(2), 19-35. https://doi.org/10.14198/i2.2018.6.2.02.

El Croquis. (2009). Enric Miralles, Benedetta Tagliabue: 2000–2009 (N.º 144). El Croquis Editorial.

Fresán, R. (2016, 11 de febrero). Una biblioteca infinita. El País. https://elpais.com/cultura/2016/02/03/actualidad/1454497660_313853.html.

Fundación Juan March. (2024, septiembre 12). Biblioteca Julio Cortázar. https://www.march.es/es/fondo/biblioteca-julio-cortazar.

García-Estévez, C. B., y Rovira, J. M. (2020). Del texto a la arquitectura. En C. B. García-Estévez y J. M. Rovira (Eds.), Archigrafías, 1983–2000 (pp. 9–28). Abada Editores.Gide, A. (1999). Dostoievski (Á. de Zubiaurre, Trad.). Alianza Editorial. (Obra original publicada en 1923).

Gilabert Sanz, S. (2015). Enric Miralles, el dibujo de la imaginación: Investigación para el proceso creativo a través de la expresión gráfica [Tesis doctoral, Universitat Politècnica de València]. Dialnet. https://dialnet.unirioja.es/servlet/articulo?codigo=6806488.

Gombrich, E. H. (1970). Aby Warburg: An intellectual biography. The Warburg Institute.

Granell Trias, E. (2011). Una maleta llena de arquitectura. En J. M. Rovira (Ed.), Enric Miralles, 1972–2000. (pp. 39–60).  (Colección Arquia/temas 33). Fundación Caja de Arquitectos.

McKim, Mead & White. (1977). A monograph of the works of McKim, Mead & White. Arno Press. (Obra original publicada en 1915).

Miralles, E., y Tagliabue, B. (1996). Memoria del concurso de la Biblioteca Nacional de Japón en Kansai [Documento de archivo]. Carpeta de proyecto EMBT Miralles-Tagliabue. Fundació Enric Miralles.

Pettegree, A., y Der Weduwen, A. (2024). Bibliotecas: Una historia frágil (E. Maldonado Roldán, Trad.). Capitán Swing.

Watkin, D. (1996). Sir John Soane: Enlightenment thought and the Royal Academy lectures. Cambridge University Press.

Yaneva, A. (2020). Crafting history: Archiving and the quest for architectural legacy. Cornell University Press.

Zabalbeascoa, A., y Rodríguez Marcos, J. (Eds.). (1999). Miralles-Tagliabue: Arquitecturas del tiempo. Editorial Gustavo Gili.

Zaragoza, I. (2015). Enric Miralles: La construcción de un pensamiento arquitectónico [Tesis doctoral, Universitat Politècnica de Catalunya]. TDX. http://hdl.handle.net/10803/285545.

Pies de página

«[…] entre 1550 y 1750 las bibliotecas se hicieron omnipresentes en los hogares de las clases profesionales urbanas. Suyo sería el nuevo santuario de las bibliotecas. Y revolucionarían el mundo del libro» (Pettegree y der Weduwen, 2024, p. 166) Bibliotecas: una historia frágil. (Volver al texto)

Aún tratándose de un archivo no oficial, la web del https://homenajeaenricmiralles.wordpress.com/ ofrece un inventario detallado de proyectos, artículos y conferencias de EMBT que sirve de apoyo y consulta, siempre contrastado con otras fuentes legítimas. (Volver al texto)

«Schools began with a man under a tree, who did not know he was a teacher, discussing his realization with a few, who did not know they were students»  Kahn, Louis I. “Form and Design.” Perspecta 7 (1961): 2–9. Cambridge, MA: MIT Press on behalf of Yale School of Architecture. (Volver al texto)

Extracto del diario del proceso de catalogación. Primer acceso a la biblioteca, 3 de marzo de 2025. Elaboración del autor. (Volver al texto)

Texto del diario del proceso de catalogación. Primer acceso a la biblioteca, 3 de marzo de 2025. Elaboración del autor. (Volver al texto)

La Vie mode d’emploi, Exercices de style y Cent mille milliards de poèmes son algunas de las obras más relevantes para el pensamiento de EMBT. Enric Miralles organizó numerosos talleres e incluso una asignatura optativa, Rue Simon-Crubellier, en torno al grupo Oulipo. Para una aproximación detallada, véase el trabajo Georges Perec, instrucciones de uso: Lecturas perequianas en la docencia de arquitectura (Díaz-García, 2018). (Volver al texto)

Durante el proceso de investigación, se ha visitado la fundación Juan March (1993-) en varias ocasiones para comprender la organización y sistema de consulta, bajo la atención de la bibliotecaria Celia Martínez Cristina. (Volver al texto)

Rodrigo Fresán (2016) describe este concepto con el término bioteca que explica en uno de sus artículos y que también usa para referirse a la biblioteca Julio Cortázar. (Volver al texto)

Extracto del diario del proceso de catalogación. Primer acceso a la biblioteca, 3 de marzo de 2025. Elaboración del autor. (Volver al texto)

CATALOGACIÓN DE LA BIBLIOTECADE ENRIC MIRALLES

Y BENEDETTA TAGLIABUE

Bernardo García Morales

Universidad Politécnica de Cataluña / Escuela Técnica Superior de Arquitectura de Barcelona
bernardo.garcia.morales@upc.edu

 

Recibido/Submitted: 26/06/2025 | Aceptado/Accepted: 12/01/2026
DOI: 10.30827/sobre.v12i.34886

 

Citar como: García Morales, Bernardo. 2026. “Catalogación de la Biblioteca de Enric Miralles y Benedetta Tagliabue”. SOBRE 12. https://doi.org/10.30827/sobre.v12i.34886

Cite as: García Morales, Bernardo. 2026. “Cataloguing the library of Enric Miralles and Benedetta Tagliabue”SOBRE 12. https://doi.org/10.30827/sobre.v12i.34886